JDN DS-238

Introduction

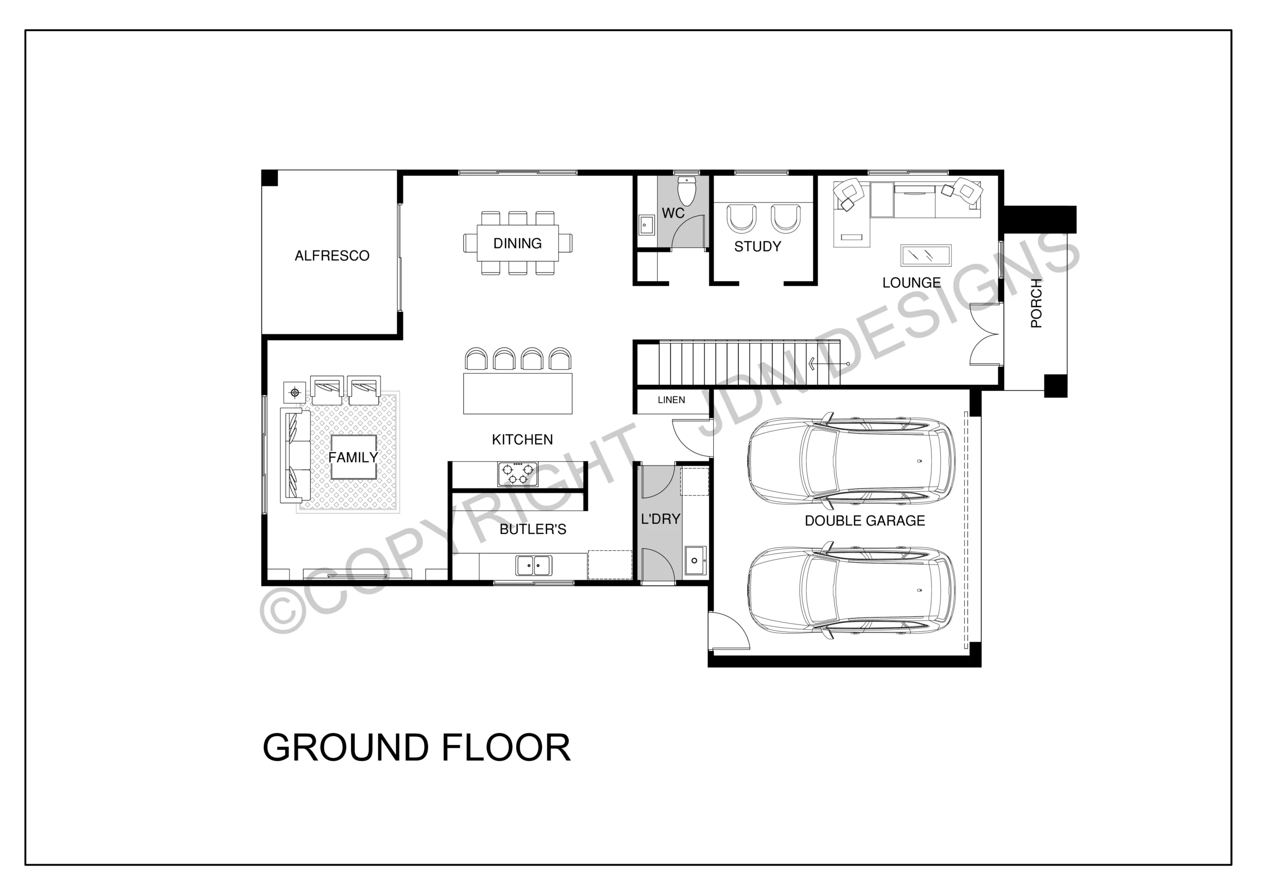
A double-storey residence showcases clean lines and a monochromatic palette, offering a sleek architectural presentation. The ground floor has an open kitchen with a butler pantry, two living areas and a study room giving more spaces for the residents. The master suite in the first floor has a balcony attached for more privacy and relaxation of the residents.

Floor plan

Details

Lot Size
360 m²
Front Width
11 m
Length
17.8 m
House Area
271 m²

A contemporary home that seamlessly integrates interior and exterior spaces.

For Customized Floor Plans Send us an inquiry

Book Your Free Consultation