JDN DS-241

Introduction

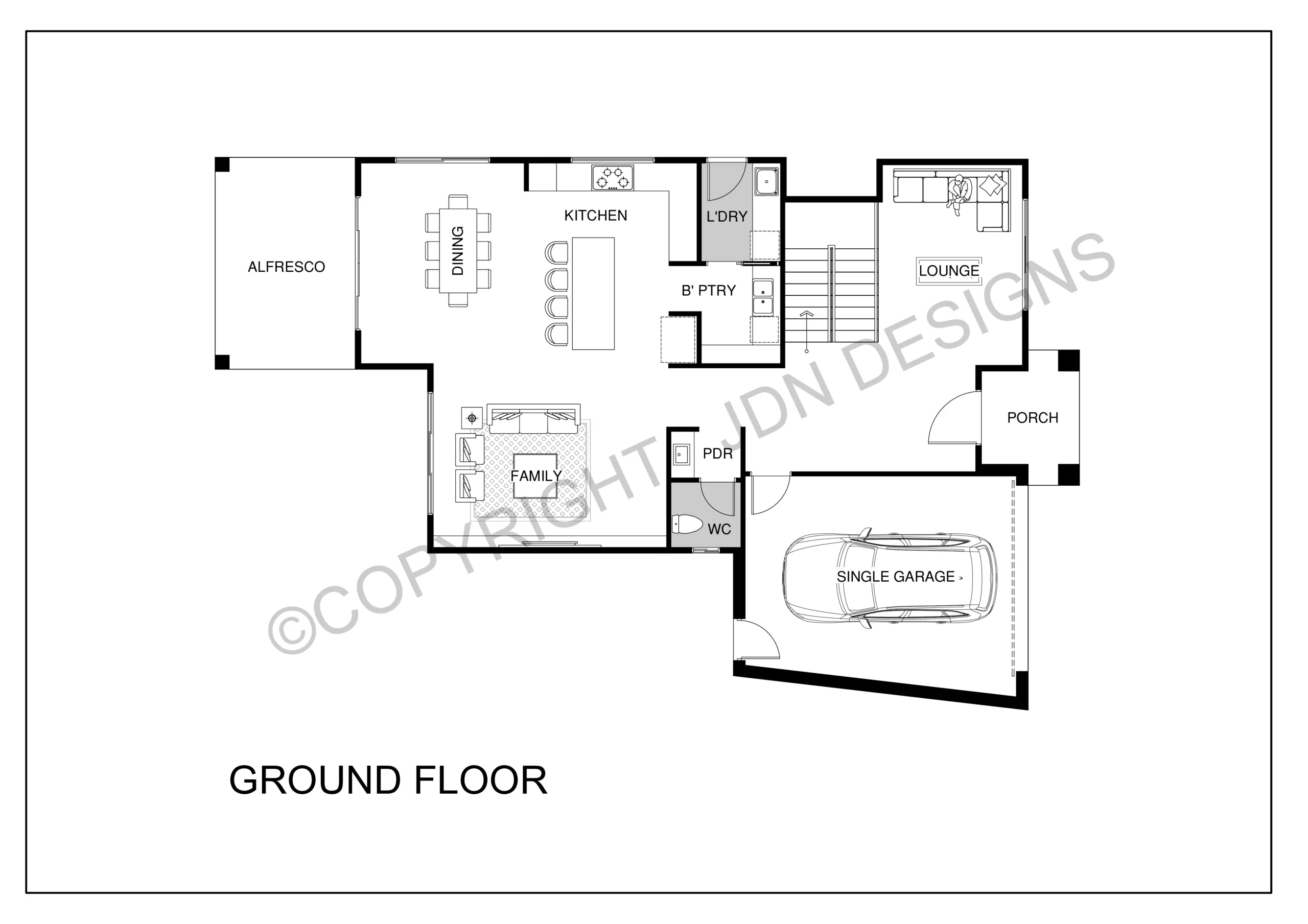
A home that has something for everyone; the ground floor includes a lounge, and spacious open plan living, kitchen and dining that effortlessly connects to the outdoor living. If you’re after a little luxury (and privacy), this design is the one; the first floor includes a large main bedroom with ensuite, walk-in robe and large lobby area, as well as three spacious bedrooms, and a main bathroom to keep the kids entertained.

Floor plan

Details

Lot Size
352 m²
Front Width
11.8 m
Length
17.4 m
House Area
267 m²

A contemporary home that seamlessly integrates interior and exterior spaces.

For Customized Floor Plans Send us an inquiry

Book Your Free Consultation