JDN SS-247

Introduction

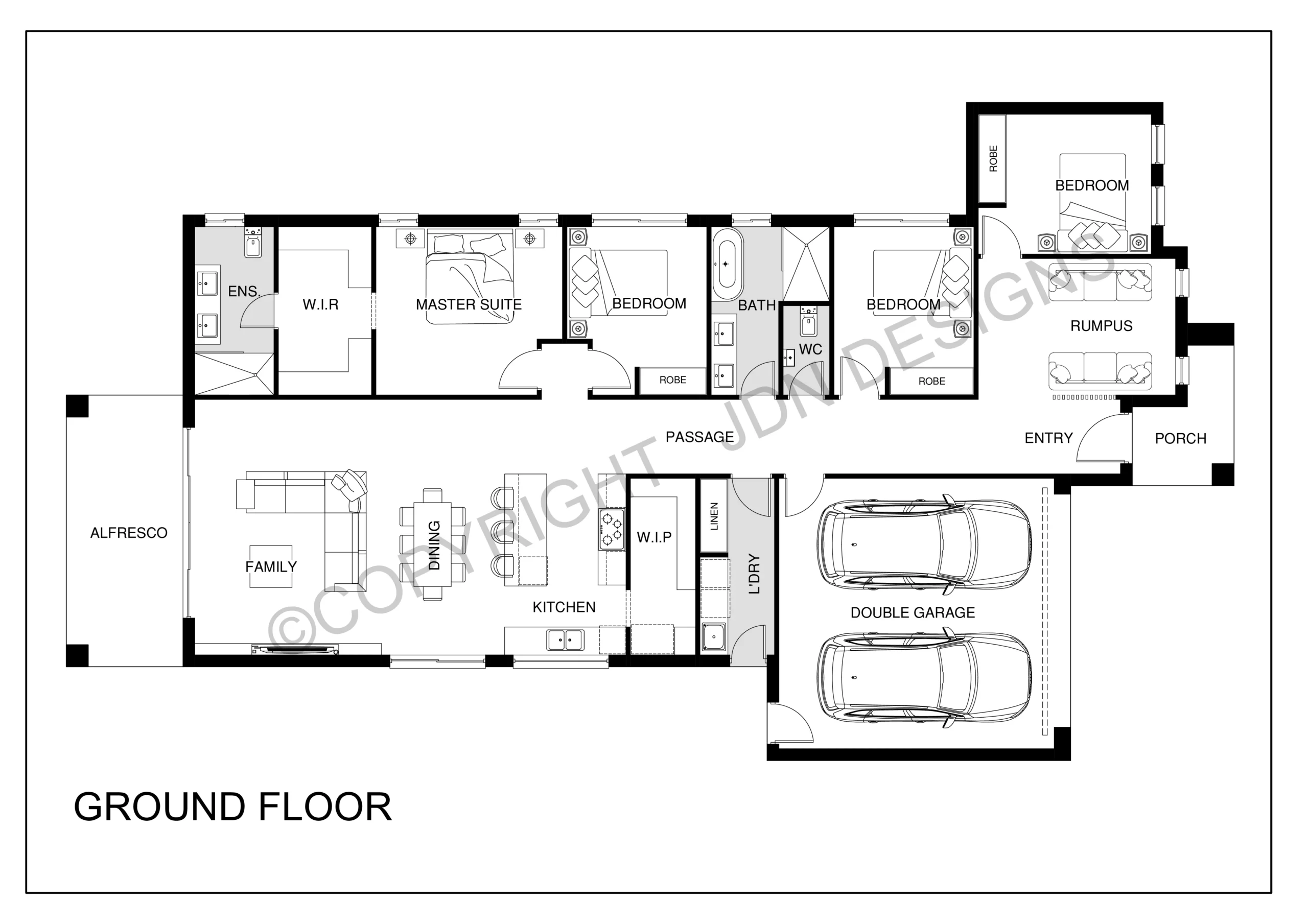
Be captivated by the flowing design of modern living in South Australia. Complete with all of life’s necessities, this large sized four bedroom single storey home will tick all your boxes. Its expansive kitchen flows seamlessly into a walk-in pantry and laundry area, ensuring convenience and efficiency. Meanwhile, it accommodates a vibrant children’s activity zone, fostering creativity and playfulness within the heart of the home.

Floor plan

Details

Lot Size
451.5 m²
Front Width
14.1 m
Length
25.01 m
House Area
239.4 m²

A contemporary home that seamlessly integrates interior and exterior spaces.

For Customized Floor Plans Send us an inquiry

Book Your Free Consultation