JDN SS-225

Introduction

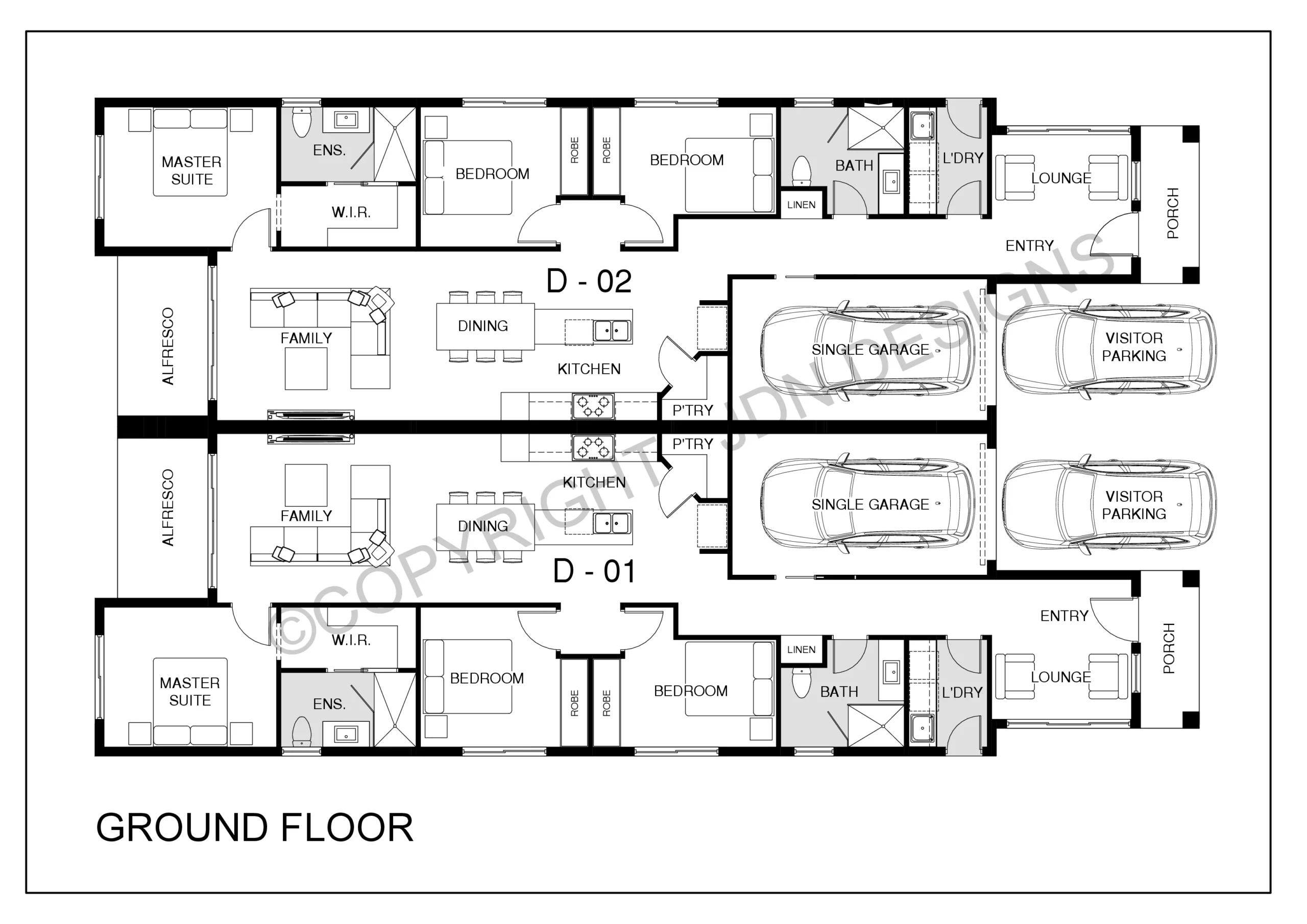
This beautiful single storey home is perfect for families who want to live together – but apart! It’s such a convenient way for contemporary multi-generational families to live, with everyone still residing under the same roof, but having the privacy and sanctuary of separate entries to their own homes. The main residence has three generous bedrooms, including a main bedroom with an ensuite, a large open-plan kitchen, dining and living space opening on to the outdoor living, as well as a family bathroom and laundry.

Floor plan

Details

Lot Size
465 m²
Front Width
14.1 m
Length
23.66 m
House Area
240 m²

A contemporary home that seamlessly integrates interior and exterior spaces.

For Customized Floor Plans Send us an inquiry

Book Your Free Consultation