JDN DS-248

Introduction

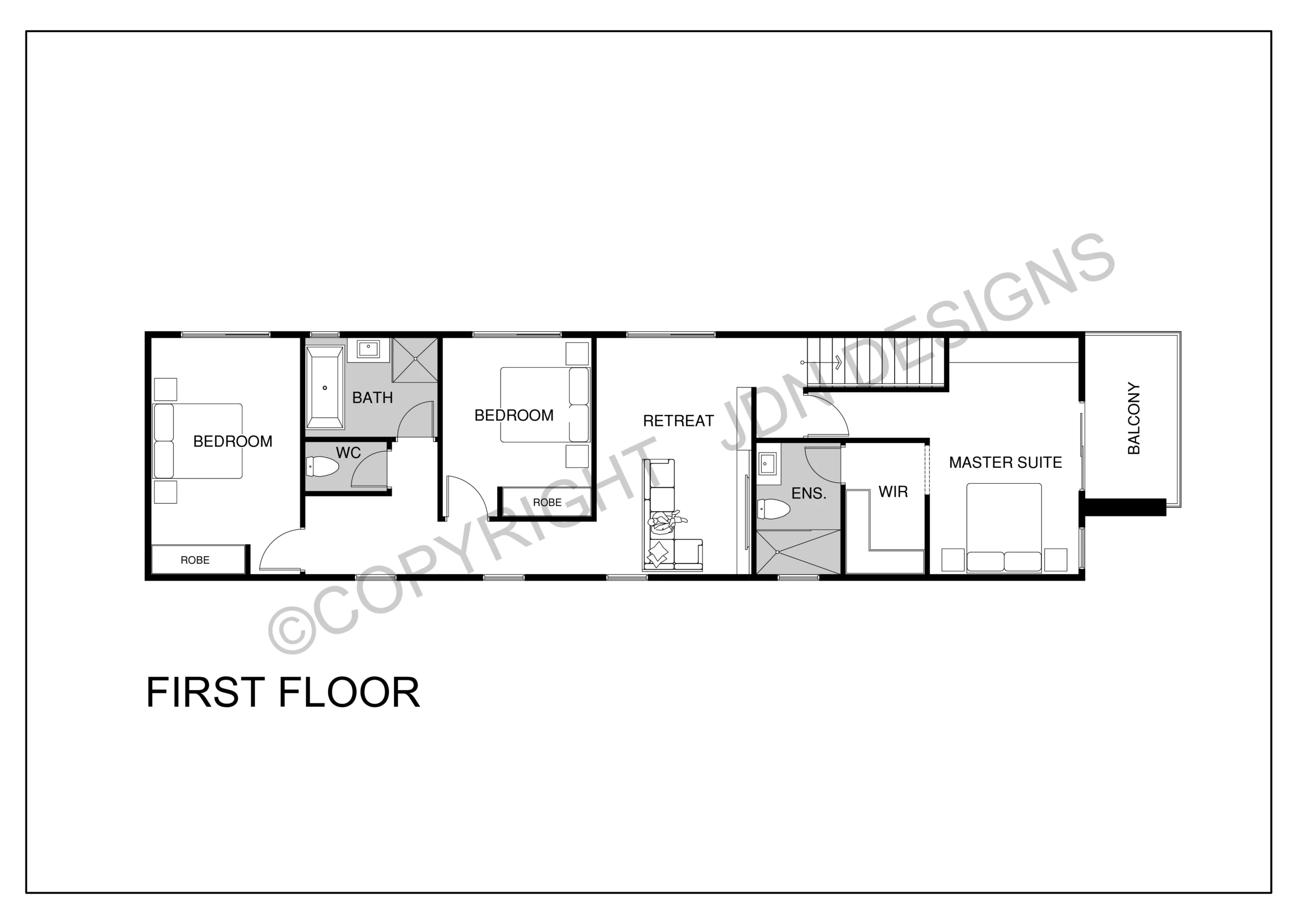
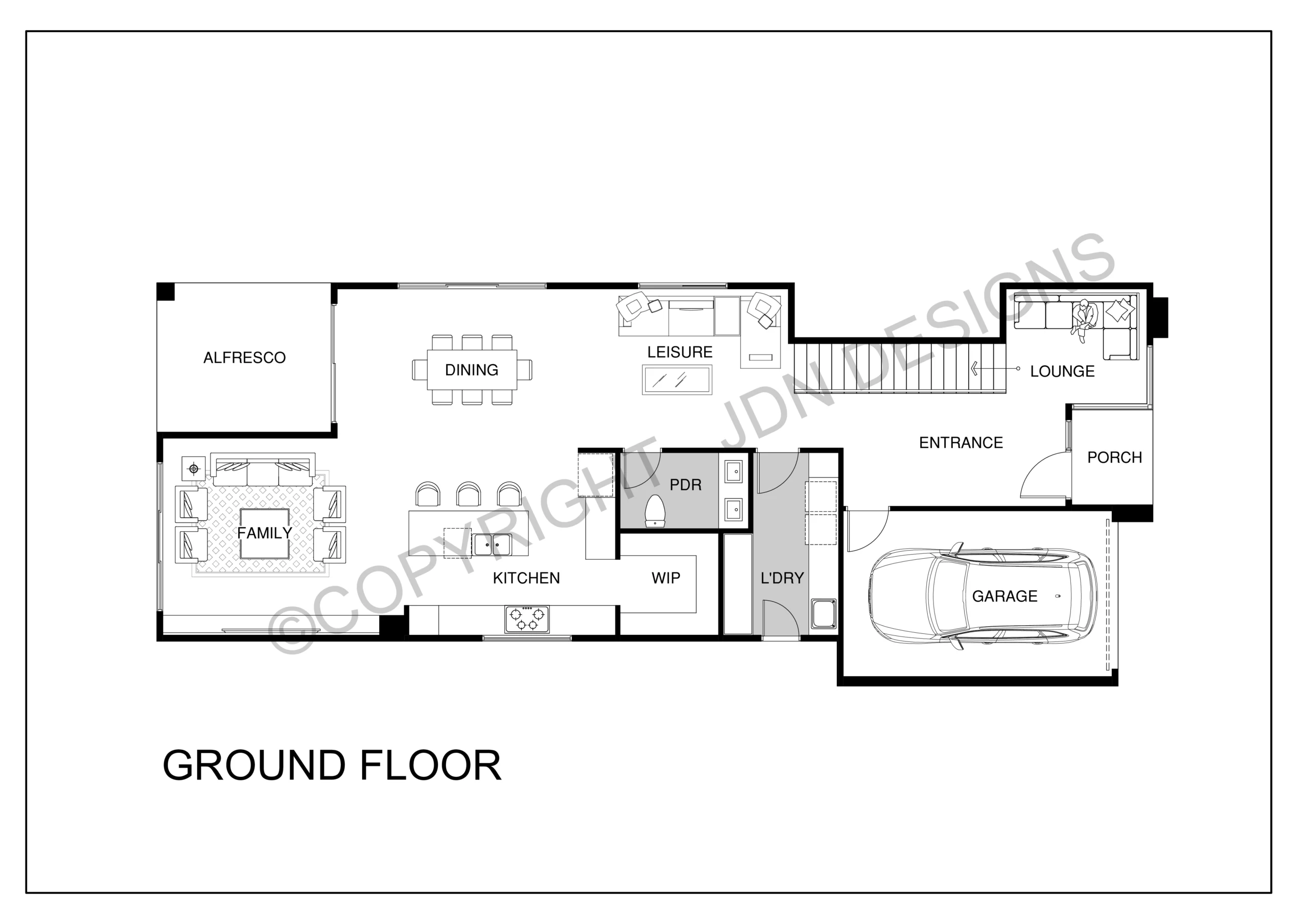
This box model double-storey dwelling, designed by JDN Designs, features a striking contemporary façade characterized by clean horizontal lines. The exterior combines dark stone cladding with smooth light-rendered walls, creating a beautiful contrast that highlights both warmth and sophistication. Large windows maximize natural light and give the home an inviting, modern appeal. The balcony on the first floor gives additional space for the master suite. This house has 3 bedrooms, two bathrooms and a single garage.

Floor plan

Details

Lot Size
315 m²
Front Width
8.1 m
Length
20 m
House Area
244 m²

A contemporary home that seamlessly integrates interior and exterior spaces.

For Customized Floor Plans Send us an inquiry

Book Your Free Consultation