JDN SS-253

Introduction

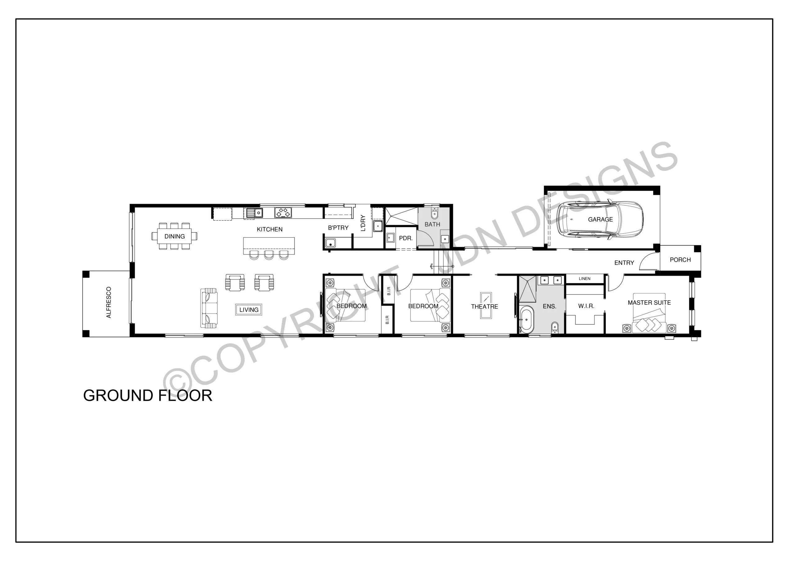
This three Bedroom home design features a spacious main bathroom located just up from bedrooms two and three, both with built in robes. The comfortable main bedroom separated from the front bedrooms offers privacy and convenience. Entertaining friends is simple thanks to the theater area positioned in the heart of the home.

Floor plan

Details

Lot Size
342 m²
Front Width
8.0 m
Length
32.680 m
House Area
210 m²

A contemporary home that seamlessly integrates interior and exterior spaces.

For Customized Floor Plans Send us an inquiry

Book Your Free Consultation