JDN SS-246

Introduction

The dual living unit welcomes you into an open kitchen and dining area, creating a warm and inviting atmosphere. With two additional bedrooms, this self-contained space is perfect for accommodating guests or providing independent living options for extended family members.

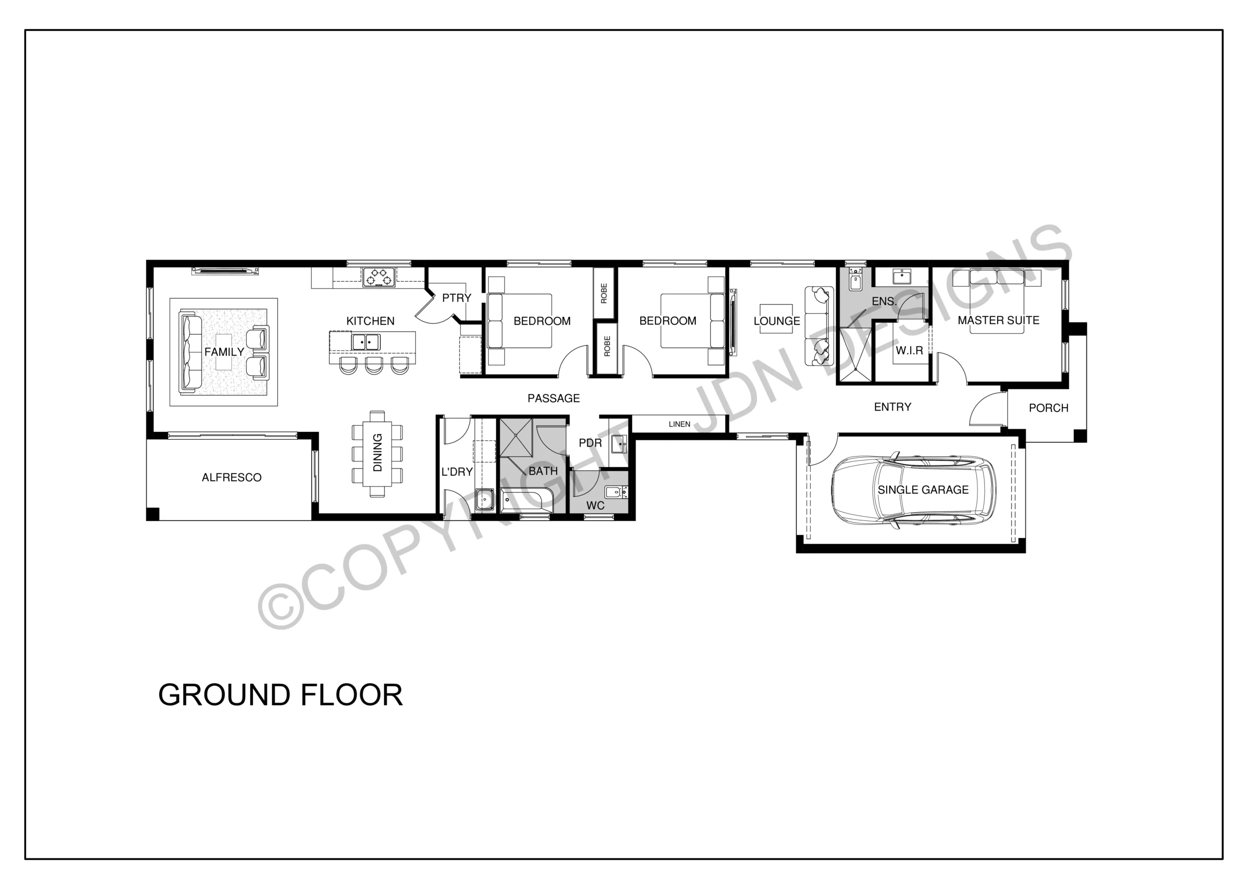
Floor plan

Details

Lot Size
310 m²
Front Width
8.15 m
Length
26.17 m
House Area
180 m²

A contemporary home that seamlessly integrates interior and exterior spaces.

For Customized Floor Plans Send us an inquiry

Book Your Free Consultation