JDN DS-266

Introduction

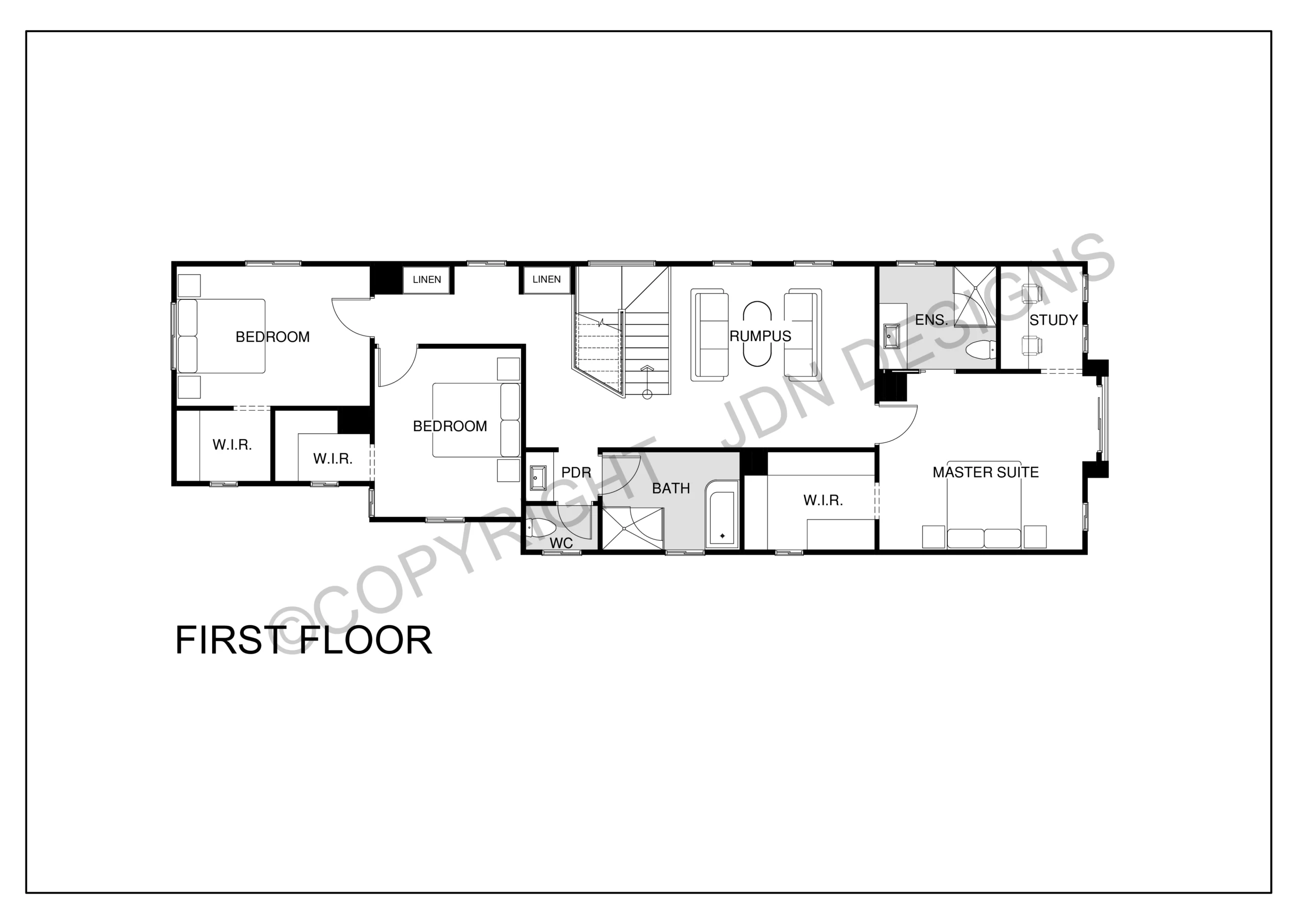
On the ground floor, there’s a large open kitchen with a butler pantry, double garage and alresco, while upstairs features three bedrooms with walk-in robes, a main bedroom with ensuite, a study nook, and a children’s activity area – making it an ideal family home design. This special double storey house has two study rooms one on the ground floor and other on first floor for kids who are doing studies.

Floor plan

Details

Lot Size
402.47 m²
Front Width
11.88 m
Length
23.86 m
House Area
307.71 m²

A contemporary home that seamlessly integrates interior and exterior spaces.

For Customized Floor Plans Send us an inquiry

Book Your Free Consultation