JDN DS-236

Introduction

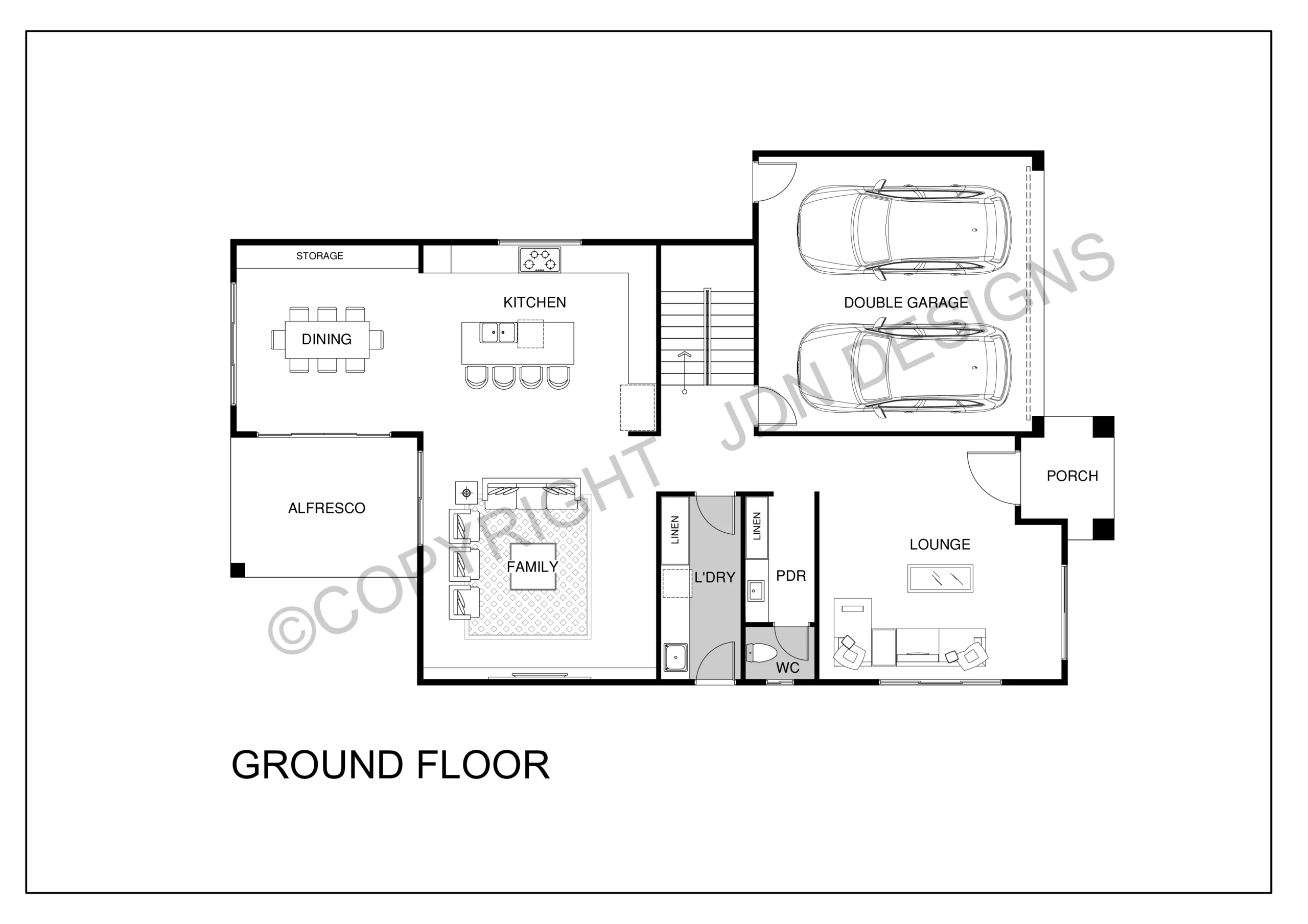
This box model double-storey house is designed with large windows to let in plenty of natural light during the day, making the house bright and welcoming. It includes three living rooms and three bedrooms and two bathrooms offering plenty of space for families to live comfortably. The double garage with large walkway is a modern feature that connects indoor and outdoor areas, creating a great flow and making the home feel open and airy. This design combines style and practical living, perfect for Aussie families looking for a modern, spacious home.

Floor plan

Details

Lot Size
375 m²
Front Width
11.4 m
Length
18.9 m
House Area
285 m²

A contemporary home that seamlessly integrates interior and exterior spaces.

For Customized Floor Plans Send us an inquiry

Book Your Free Consultation